Bob Hsiung's Design Portfolio


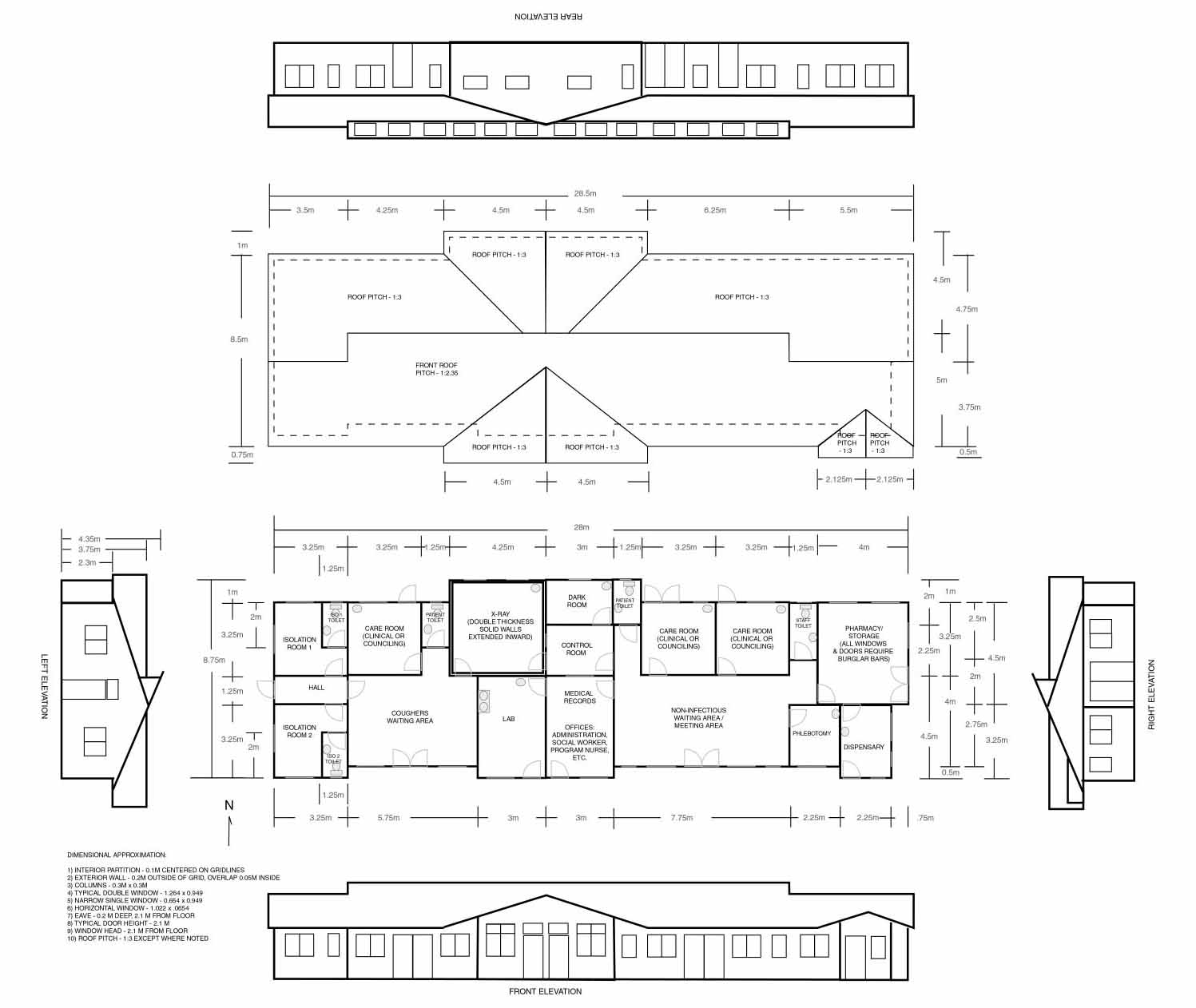
Remote HIV Clinics in Lesotho