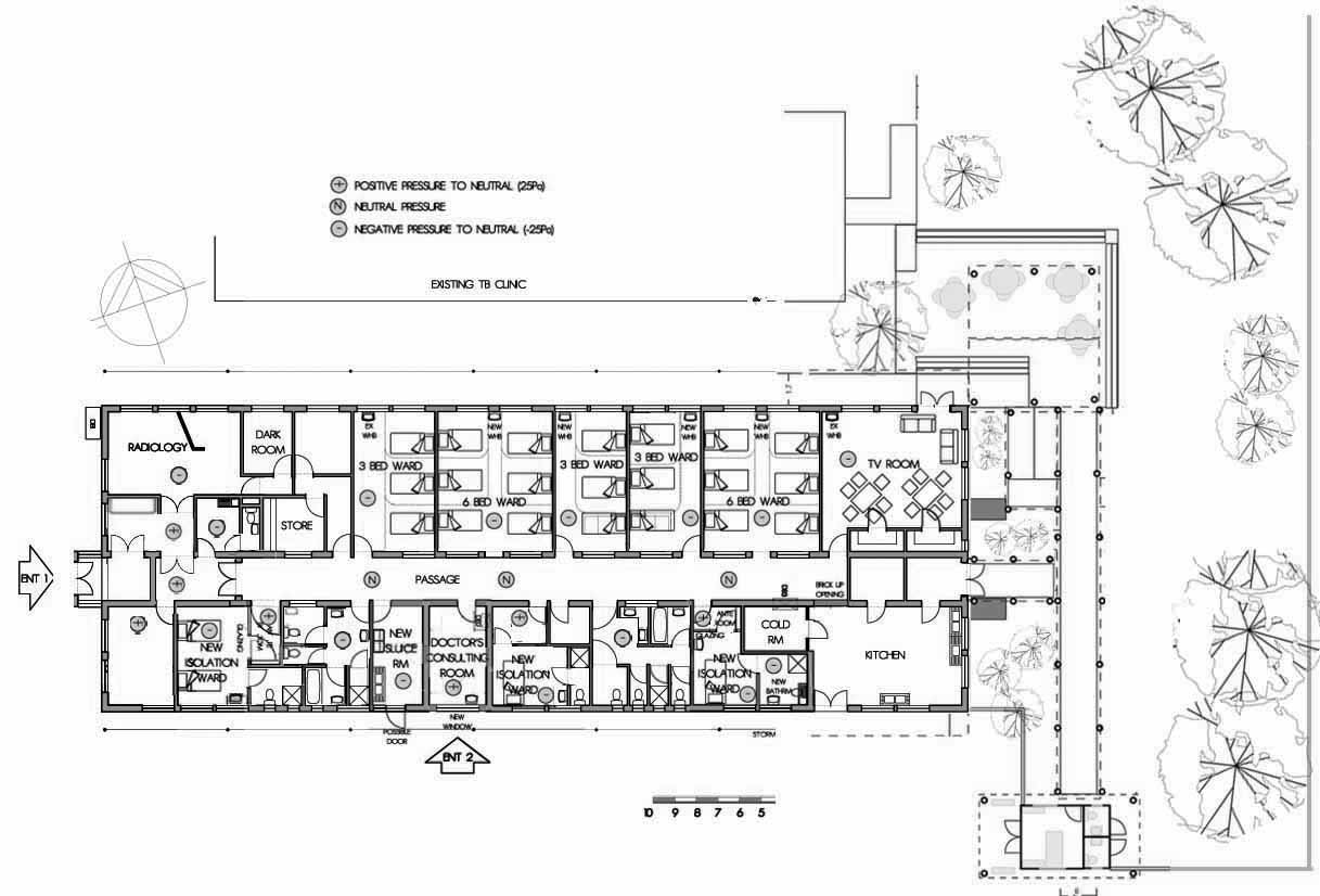
The project was to convert an old leprosy ward into the first positive air flow TB hospital in Sub-Saharan Africa. This hospital was to become a central training hospital to counter the growing MDRTB threat in the region.
I consulted ventilation and infection control experts, performed architectural design, and drafted detailed blueprints to alter the existing building. I worked with clinicians to define the optimal patient flow.
Lesotho's One-of-a-Kind Hospital